Dorotheen Hof, Schwelm

Neubau eines Mehrfamilienhauses mit Tagespflege und Beatmungs-WG,

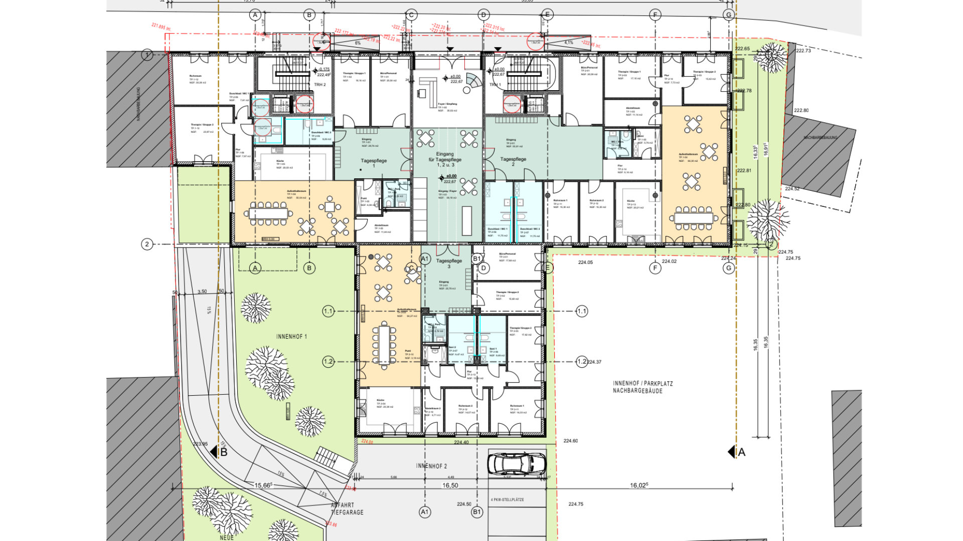
Das Gebäude Weststraße 25 liegt ca. 650 Meter vom Schwelmer Stadtzentrum entfernt. Es ist voll unterkellert, besteht aus KG (Tiefgarage), EG, 1. OG, 2.OG und einem Staffelgeschoss (3.OG). Im EG gibt es Terrassen, im 1.OG und 2.OG Balkone und die Wohnungen im Staffelgeschoss haben großzügige Terrassen zur Nutzung.

Im KG sind die Versorgungsräume, 26 Tiefgaragenstellplätze und 4 Kellerräume, die den Wohnungen zugeordnet sind, untergebracht. Die Zufahrt zur Tiefgarage erfolgt über die Hauptstraße im Süden, zwischen den Gebäuden an der Hauptstraße 3 und 5.