
Umbau Blocklager zu Konferenzbereich
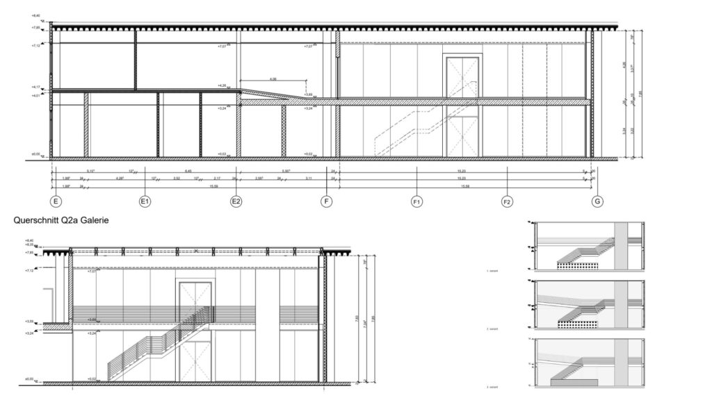
Moderne Office-Architektur schafft Arbeitswelten, die Offenheit, Fokus und Identität zugleich fördern. Im Zentrum steht eine transparente Innenarchitektur, die Sichtbeziehungen stärkt und die Kommunikation intuitiv lenkt. Ein markantes Gestaltungselement bildet das transparente Foyer mit einer zentralen Stahltreppe. Sie verbindet nicht nur Etagen, sondern dient als architektonisches Rückgrat des Hauses – ein skulpturales Objekt, das Bewegung, Begegnung und räumliche Großzügigkeit miteinander verknüpft.
Ein markantes Gestaltungselement bildet das transparente Foyer mit einer zentralen Stahltreppe. Sie verbindet nicht nur Etagen, sondern dient als architektonisches Rückgrat des Hauses – ein skulpturales Objekt, das Bewegung, Begegnung und räumliche Großzügigkeit miteinander verknüpft. (Projekt: Adolf+Seibel Architekten)





