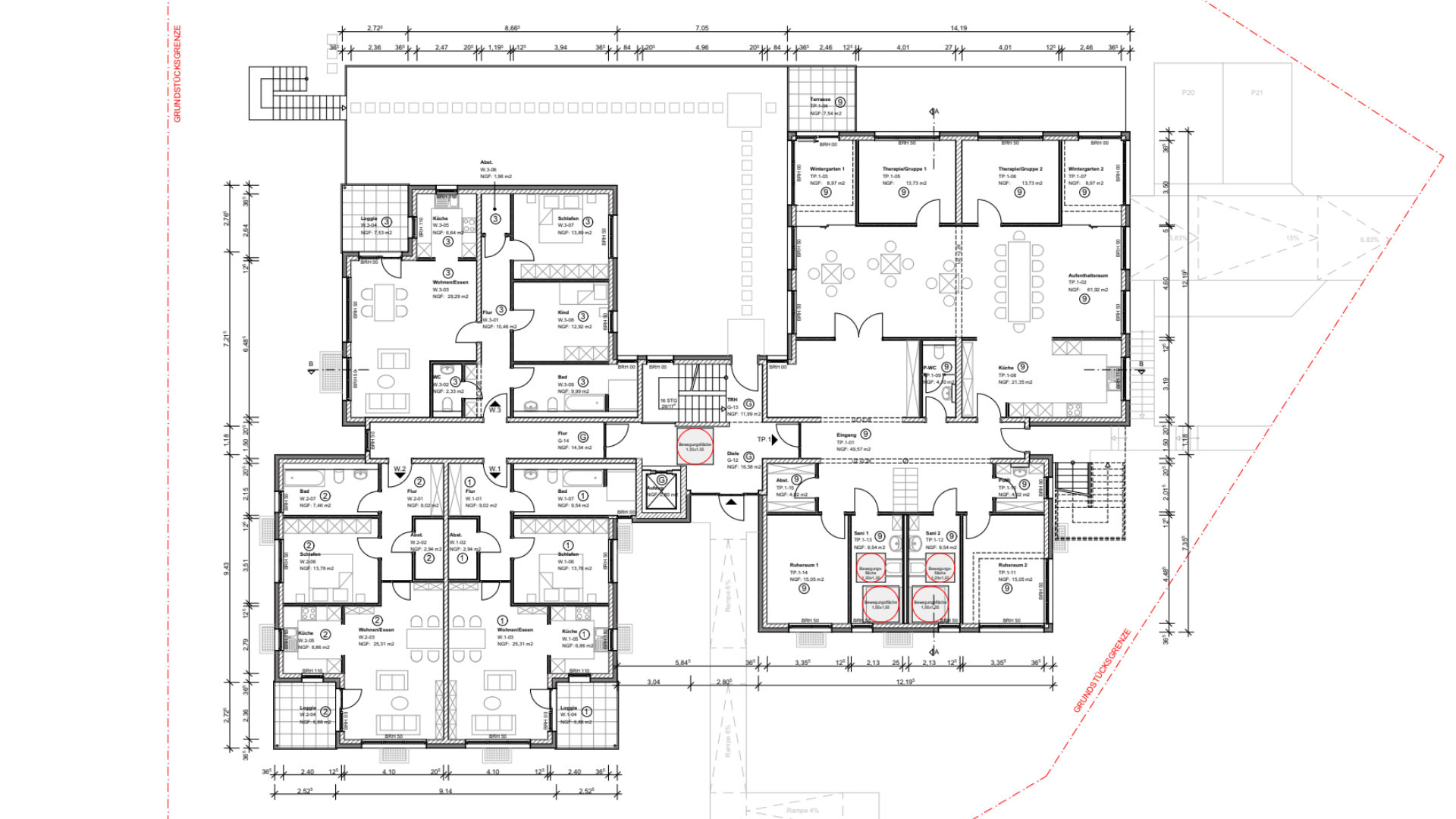
Dorotheenhof, Grevelsberg

Mehrfamilienhaus mit Tagespflege

Auf einer innerstädtischen, zentrumsnahen Brachfläche entstand das 2 ½ – geschossige
Mehrfamilienhaus mit Tagespflege. Das Gebäude ist voll unterkellert und verfügt über eine mit
Extensivbegrünung versehene Tiefgarage, die Stellplätze sind mit Wallboxen ausgestattet. Das
mit Holzschalung bekleidete Staffelgeschoss wurde komplett in Holzrahmen-Modulbauweise
erstellt, auf der Dachfläche befindet sich eine Solarthermieanlage. Blickfang ist der in
Sichtbetonelementen errichtete, zur Heidestraße gelegene Aufzugsschacht mit dem Schriftzug
„Dorotheen Hof“.

Besonderheiten:

  • Errichtung des Staffelgeschosses in Holzmodulbauweise
  • Geschossweise Fertigstellung nach Lean Construction Prinzipien
  • Einsatz der eigenen Software tick@time (Agiles Projektmanagement)